查看: 105|回复: 0

三星堆文化从何而来?宝墩古城考古传递重要信息|三星堆问答

[复制链接]

901

主题

0

回帖

440

积分

中级会员

积分
440
发表于 2025-12-8 13:14:07 | 显示全部楼层 |阅读模式
d1.webp
1980年,四川省文管会、四川省博物馆与广汉县文化馆组成联合发掘队,在三星堆地点东侧发现18座房址,为三星堆遗址一期文化遗存,碳十四标本测年距今4500年左右,约当新石器时代晚期,这是三星堆迄今发现的最“老”房子。
1986年,三星堆遗址一、二号祭祀坑“一醒惊天下”,大批青铜器、金器、玉石器出土,其文化来源引起学术界极大关注。三星堆“最老”的房子与此有关吗?以祭祀坑遗物为代表的三星堆文化究竟从何而来?新津宝墩古城的考古发现,为溯源研究带来了希望。
宝墩古城的发掘:

掀起古蜀文明探源研究新高潮

1995年,成都市文物考古工作队(成都文物考古研究院)获得国家考古团体领队资质,一批青年学者总想了却一个心愿:建立起完整的成都平原先秦文化序列。
当年9月,成都市文物考古工作队江章华与四川大学马继贤,卢丁等老师来到新津县新平镇龙马乡(今新津区宝墩镇宝墩村),对传说三国时期的“孟获城”(也称“龙马古城”)进行调查,在竹林掩藏、高耸地表的土埂子上部发现汉代砖室墓,初步认定“埂子”的年代可能会很早。12月,江章华、卢丁带队对当地叫“宝墩”的土埂进行解剖试掘。仅仅几天,就在土埂上部发现未经扰动的陶片堆积,它与三星堆遗址一期文化出土物一致,当解剖探沟向下延伸,人工夯筑的特征显露无遗,“我当时基本判断这就是新石器时代晚期的人工夯筑城墙,在年代上要比三星堆商时期城墙早得多,踏破铁鞋无觅处,在我们脚下有可能是成都平原最早的城址。”江章华回忆说。
d2.webp 宝墩古城“宝墩”地点城墙 d3.webp 宝墩古城“游埂子”城墙剖面
宝墩古城亮相:

西南地区最大史前古城

对宝墩古城持续多年的发掘,将长江上游也是中国西南地区迄今发现的最大规模史前城址呈现在公众眼前。1995年,考古工作者根据地表残留的城墙遗迹推测城址面积在25万平方米以上。1996年以后,对蚂蟥墩、李埂子、余埂子等多段进行解剖发掘,确认城址面积达到60余万平方米。2009年,对石埂子等地点进行解剖发掘,确认多段外城城墙、城壕,城址面积达276万平方米。这一规模在当时仅次于长江下游年代稍早的良渚古城(那时年代稍晚的石峁古城尚未发现),堪称“长江上游第一城”。
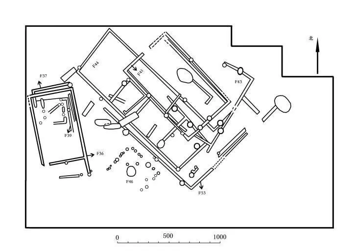
d4.webp 宝墩古城北侧城墙 d5.webp 宝墩古城出土碳化水稻研究表明,宝墩古城由内、外两圈城墙组成,这是中国早期城市圈城格局的重要实证。在宝墩古城内还发现有多组大型建筑遗存,位于内城的1号基址有40多个1米见方的大型柱洞,该建筑呈“品”字形,两侧各有一个附属建筑,面积达到210平方米,是宝墩古城发现的最大建筑遗迹,年代距今约4500年左右,也是成都平原迄今发现“最老”的高等级“大房子”。
d6.webp 宝墩古城1号建筑基址航拍图 d7.webp 宝墩古城1号建筑基址平面图宝墩古城还发现有与三星堆遗址一期文化类似的木(竹)骨泥墙式建筑遗迹,这是当时流行的普通地面建筑。伴随宝墩古城考古的不断进行,成都平原早期城址文明研究的“牛鼻子”被牵了出来。
d8.webp 宝墩古城木(竹)骨泥墙式房屋建筑遗迹 d9.webp 宝墩古城木(竹)骨泥墙式房屋建筑遗迹平面图
宝墩文化年代:

与三星堆遗址一期文化同期

宝墩古城的发现拉开了在成都平原寻找史前城址的序幕,“我们那些年常常处于亢奋之中,每到周末大家即相约出行,把方志和文献记载的古城挨个实地核查,其结果让人大吃一惊”,江章华说。
一大批青年学者加入战队,颜劲松、李明斌、张擎、何锟宇等纷纷带队在郫都区古城、温江区鱼凫古城、都江堰市芒城、崇州市双河古城和紫竹古城、大邑县高山古城、盐店古城遗址进行考古勘察和发掘,发掘结果证明,这些古城无一例外均为同一文化阶段遗存,城址面积从30余万平方米至10万平方米不等,形状有方形、不规则形,出土陶器器形主要有喇叭口高领罐、壶、宽沿平底尊、敛口罐、绳纹花边口罐、敞口圈足尊、盘口圈足尊、豆等,其年代距今约4500至3700年。在这些遗址中,以宝墩城址规模最大、最早发现、最具典型性,学术界因此将这一文化命名为“宝墩文化”,与三星堆遗址一期属于同一文化,这为我们深刻理解三星堆文明的形成,认识三星堆巨大都城建立的基础提供了重要信息。
d10.webp 宝墩古城出土部分典型器物实际上,宝墩等古城的发现和宝墩文化命名的意义远不止这些。
从20世纪80年代以来在黄河、长江流域先后发现一批约当新石器时代晚期的重要古城遗址,“这些古城的出现,昭示在黄河、长江流域广袤大地上发生了大的变革,社会、经济、文化大发展,人群互动空前频繁,是中华文明多元一体格局形成的重要时期。宝墩等城址的发现,无疑将长江上游地区纳入这一文明演进体系之中。这些新发现来之不易,弥足珍贵,为我们重新认识成都平原作为长江上游地区文明起源中心的发展历程提供了重要实证。”北京大学孙华教授说。
d11.webp 宝墩古城航拍照片 d12.webp 宝墩古城平面图封面新闻记者 刘可欣 图据成都文物考古研究院
免责声明:本文由网友发表或转载,不代表自贡论坛观点和立场,不对其真实合法性负责.如有异议或侵权,请与本网站联系删除!
回复

使用道具 举报

您需要登录后才可以回帖 登录 | 立即注册

本版积分规则

全站链接: 工程造价

QQ|手机版|小黑屋|自贡论坛 ( 蜀ICP备12031032号-2 )|网站地图川公网安备 51030002000002号

GMT+8, 2026-4-3 17:32 , Processed in 0.100371 second(s), 8 queries , Redis On.

Powered by Discuz! X3.5

© 2016-2021 Comsenz Inc.

快速回复 返回顶部 返回列表