查看: 95|回复: 0

后现代135平米三房二厅二卫装修案例

[复制链接]

859

主题

0

回帖

387

积分

中级会员

积分
387
发表于 2025-12-9 09:57:17 | 显示全部楼层 |阅读模式
后现代135平米三房二厅二卫装修案例



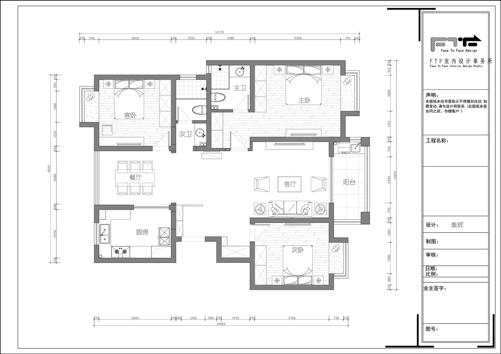
所在楼盘:君悦蓝庭      装修风格:后现代装修   户型:三房二厅二卫    面积:135㎡     装修预算:12万元   装修套餐:大全包   
感觉:混搭                   效果图名称: 后现代135平米三房二厅二卫混搭装修效果图


计理念:后现代风格,充分利用房屋空间,装饰性与实用性相结合。


d1.webp


效果图

客厅

后现代混搭客厅装修效果图



d2.webp



后现代风格,充分利用房屋空间,装饰性与实用性相结合。

餐厅

后现代混搭餐厅装修效果图



d3.webp



后现代风格,充分利用房屋空间,装饰性与实用性相结合。

客厅

后现代混搭客厅装修效果图



d4.webp



后现代风格,充分利用房屋空间,装饰性与实用性相结合。

3D效果图   360°全景浏览
免责声明:本文由网友发表或转载,不代表自贡论坛观点和立场,不对其真实合法性负责.如有异议或侵权,请与本网站联系删除!
回复

使用道具 举报

您需要登录后才可以回帖 登录 | 立即注册

本版积分规则

全站链接: 工程造价

QQ|手机版|小黑屋|自贡论坛 ( 蜀ICP备12031032号-2 )|网站地图川公网安备 51030002000002号

GMT+8, 2026-3-28 05:03 , Processed in 0.081974 second(s), 9 queries , Redis On.

Powered by Discuz! X3.5

© 2016-2021 Comsenz Inc.

快速回复 返回顶部 返回列表