查看: 103|回复: 0

【名匠开工案例】紫荆城邦两套经典设计

[复制链接]

901

主题

0

回帖

510

积分

高级会员

积分
510
发表于 2025-12-9 09:57:17 | 显示全部楼层 |阅读模式
d1.webp

有人常问你们做设计,设计到底是什么

我是这样回答的:设计就是创意和创新的桥梁

设计师在空间作品构思过程中所确立的主导思想,它赋予作品文化内涵和风格特点。好的设计理念至关重要,它不仅是设计的精髓所在,而且能令作品具有个性化、专业化和与众不同的效果。设计的核心是一种创造行为,设计要求新、求异、求变、求不同,否则设计将不能称之为设计。

今天我们带来的两套案例是紫荆城邦陈姐爱家。通过交流陈姐两套房一套是给父母住倾向乡村美式风格,一套是自住喜欢地中海风格,对于设计留给设计师自由发挥的空间比较多,我们来看看设计后的效果吧。

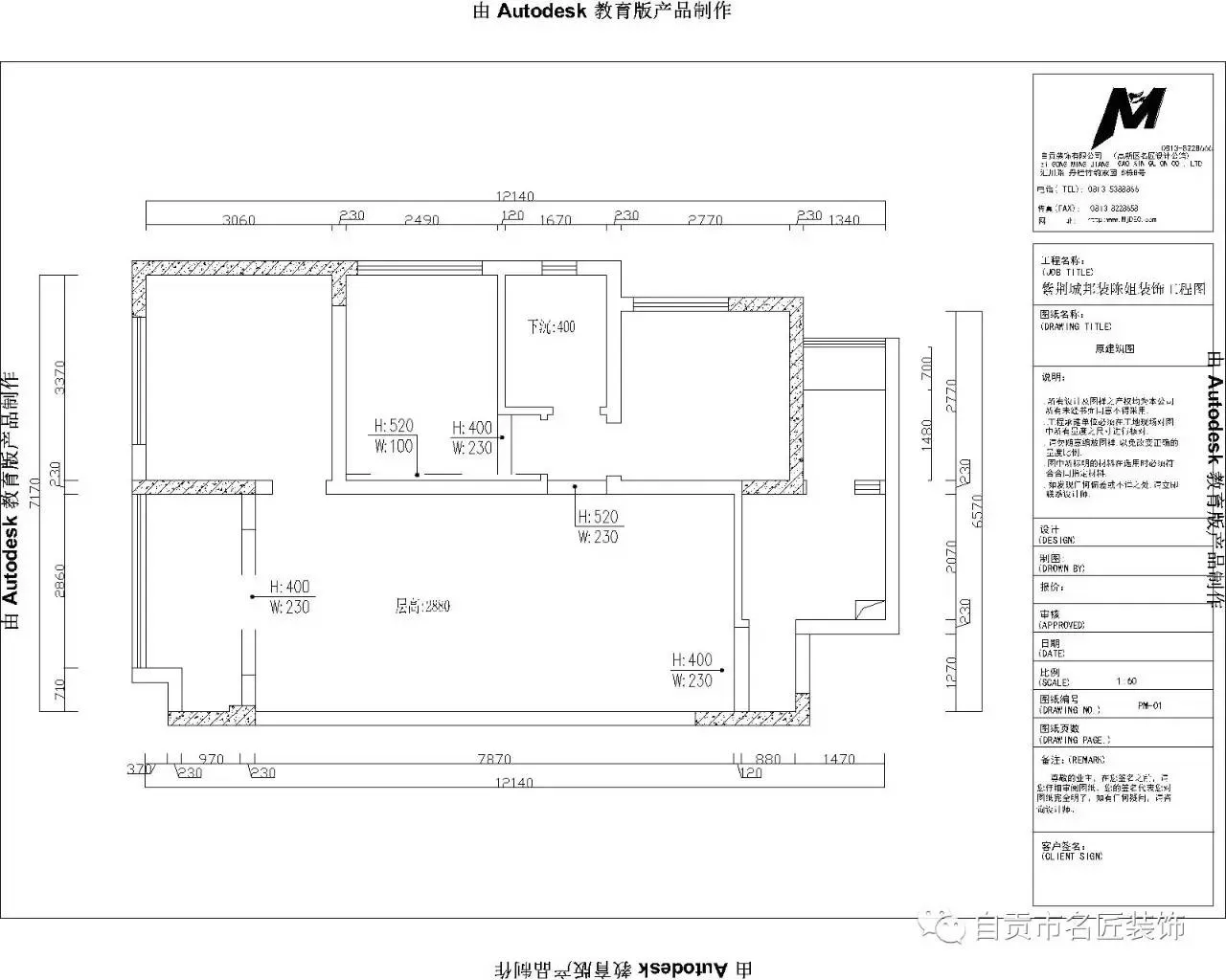
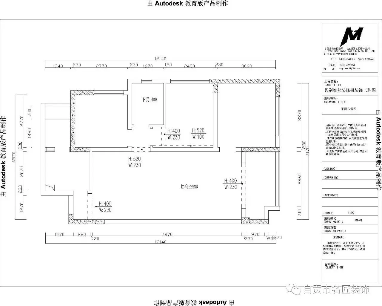
原户型

d2.webp

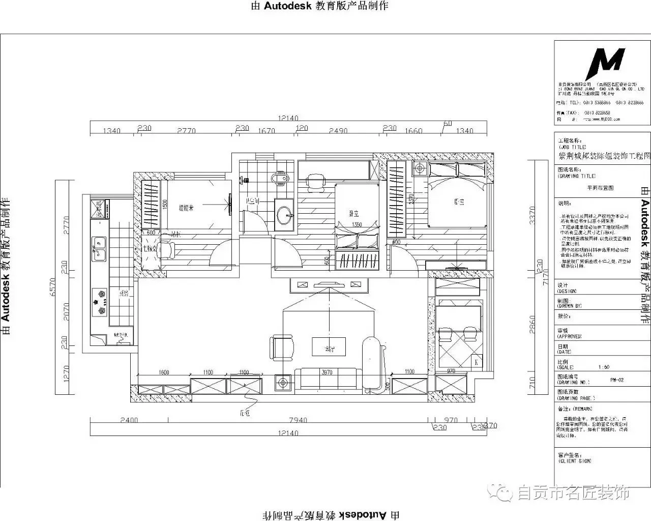
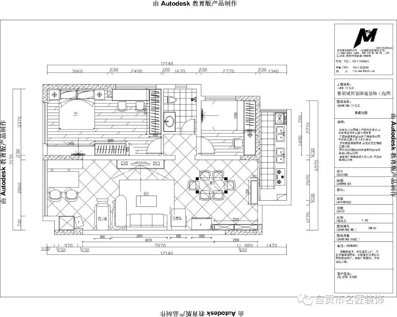
改造后

d3.webp

设计理念

该套是陈姐一家三口人居住,在布局功能上客厅增加了孩子活动区域,另外在餐厅的布局上采用多功能卡座设计,平时还可以家庭办公使用。地中海风格主色以蓝白为主,大量运用曲线配以经典马赛克设计。

客 厅

d4.webp

餐厅

d5.webp

主卧

d6.webp

第二套房为父母居住,颜色选择方面以深色为主,乡村美式的经典配色棕色,以及绿色,我们来看看这种大胆的配色效果怎样。

原户型

d7.webp

改造后

d8.webp

设计理念

该套为父母居住,平时儿女在一起吃饭的时间比较多,我们考虑到的是增加餐厅面积,以及厨房操作间改动,墙面与家具以及陈设品的色彩选择上——自然、怀旧、散发着质朴气息的色彩是美式乡村风格的典型特征

客厅

d9.webp

主卧

d10.webp


设计师-张吉星

中国室内装饰注册设计师

名匠装饰集团自贡公司室内设计高级效果督导


d11.webp

d12.webp

d13.webp

粤派豪宅装修专家 专注家装25年

---------------------------------------------

比设计 看材料 拼工艺 论品牌

名匠装饰集团大联动 特价征集样板房(60套)


智能家电送

主材豪礼送

人工费享受全年最低价

最新装修工艺免费升级

VIP管理送

报名了解更多活动内容

免责声明:本文由网友发表或转载,不代表自贡论坛观点和立场,不对其真实合法性负责.如有异议或侵权,请与本网站联系删除!
回复

使用道具 举报

您需要登录后才可以回帖 登录 | 立即注册

本版积分规则

全站链接: 工程造价

QQ|手机版|小黑屋|自贡论坛 ( 蜀ICP备12031032号-2 )|网站地图川公网安备 51030002000002号

GMT+8, 2026-3-28 05:06 , Processed in 0.112401 second(s), 10 queries , Redis On.

Powered by Discuz! X3.5

© 2016-2021 Comsenz Inc.

快速回复 返回顶部 返回列表