查看: 561|回复: 0

岩居|房子在哪儿不重要,重要的是自己喜欢 —— 一对85后留乡创业夫妻的家

[复制链接]

881

主题

0

回帖

471

积分

中级会员

积分
471
发表于 2025-12-9 10:05:53 | 显示全部楼层 |阅读模式
d1.webp



人处在一种默默奋斗的状态,精神就会从琐碎的生活中得到升华。

People in a state of silent struggle,the spirit will be sublimated from the trivial life .



留在大城市还是回到家乡,每个人都有自己的选择。都说有工作的地方没有家,有家的地方没工作,他乡容不下灵魂,故乡安不了肉身……


本案位于重庆江津白沙镇,是一对留在家乡创业的85后小夫妻的家。他们选择留在自己的家乡,经营着自己的包装厂,时光不负努力,梦想一步步实现着……



设计施工单位 / 岩居全案机构

Designer ang Build / YANJU DESIGN

项目地址 / 江津白沙镇御景江岸

Location / Yujing river bank,Baisha Town,Jiangjin

户型面积 / 134㎡

Unit type and area / 134㎡

风格趋势 / 现代混搭

Scenery trend / Modern mix and match

格局分布 / 三室两厅

Pattern distribution / Three rooms and two living rooms


设计师自述:

本案的业主是通过「小红书」找到岩居的,一开始就被设计师直爽的处事风格吸引,一拍即合,达成合作。

业主喜欢深色系时尚简约风,所以房屋在整体搭配上介于黑白灰棕之间,加以少部分明亮色彩的软装点缀,最终呈现出更好的视觉和居住体验效果。设计师还为屋主家的小猫量身定制了猫柜子,电视墙隐形门的设计也让整个客厅更加通透出彩。


客户需求:

1. 房屋通透;

2. 对生活品质有追求,喜欢深色系有质感的东西;

3. 保留衣帽间。


案例故事:

设计师对质感和细节的把控都十分到位。业主夫妻俩看到这套房子的成品是十分感动的,用业主的原话说是大大地超出了他们的预期。虽然过程中也有小瑕疵,但是发现问题后,公司积极承担整改。我们不怕发现问题,我们要的是解决问题的态度。

这套案例在江津,相对较远,5月12日进场开工,9月底完成交付。4个月的工期,克服异地运输、监督、主材衔接等因素,保质保量完成,靠的是团队及业主之间的相互配合。在接房后,男业主以一个军人敬礼的告别姿势来表达感谢,岩居团队的成员们深深地被这个礼仪所感动。业主的认可是我们不断前行的力量!

d2.webp



整体费用:50W

(主材:日立中央空调、珀菲克定制、卡斯摩木地板、嘉尼亚瓷砖、尚鼎木门、菲尼斯门窗、恒洁卫浴、山竹饰面板、缀美美缝、方太烟机灶、怡口净水器、爱适易垃圾处理器)


主材明细表:
d3.webp


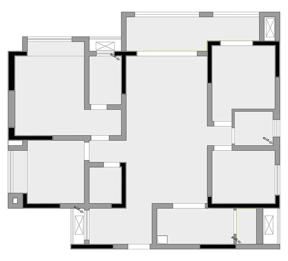
原始结构图与平面布置图:


d4.webp




△ 原始结构图





d5.webp


△ 平面布置图

原始户型厨房狭长,在设计上拆掉进门右边的墙,用作岛台西厨的位置。将客餐厅融为一体,增加空间通透性,左手边书房改造成衣帽间与主卧形成一个完整的套房,增加私密性。电视墙做了隐形门,让原本狭短的电视墙显得宽敞大气。将次卧与多功能房的通道隐藏,使得客厅更显简洁美观。

施工前后对比:

d6.webp



LIVING ROOM / 客厅


d7.webp




d8.webp


原始户型南北通透,阳台采光极好,设计师使用了黑色铁艺玻璃滑门,简约时尚,也契合整体简约为上的装修风格,同时也将阳光最大限度地引进屋内。

The original apartment is transparent from north to south, and the balcony has excellent lighting. The designer uses black wrought iron glass sliding doors, which are simple and stylish, which also fits the overall simplicity of the decoration style, and also introduces sunlight to the maximum extent.

d9.webp



d10.webp



黑白灰为主色调配合暖光灯和白纱窗帘,大气而不失格调;屋内线条简单直接,颇具屋主的行事风格。

The main colors of black, white and gray are matched with warm lights and white gauze curtains, which are atmospheric and quite stylish; the lines in the house are simple and straightforward, quite the style of the owner.


TV-Wall / 电视墙
d11.webp




d12.webp


电视墙采用整墙的饰面板,增加空间质感。隐形门设计让原本的过道与电视墙面融为一体,简洁大气的同时,也增加了多功能房及次卧的隐私性。

TV wall USES the act the role ofing face plate of whole wall to have simple sense very much, invisible door design originally corridor is in harmony with TV metope be an organic whole, concise atmosphere is added the privacy sex of muti_function room and second lie.

d13.webp


DINING ROOM / 餐厅


d14.webp



d15.webp


餐厅与西厨结合在一起,餐桌连接岛台,方便操作,也增加时尚感。将冰箱、蒸箱嵌入柜体中,风格形成统一,整个空间整洁干净。

Dining-room is united together with western hutch, mensal connects island to facilitate make a gender, also increase fashionable feeling to tell freezer to evaporate box is embedded in ark put oneself in another's position to form unified, whole space is neat and clean.



d16.webp



d17.webp




CHINESE KITCHEN / 中厨




d18.webp


一道滑门将中西厨分开,不用担心川渝人重油爆炒的烹饪习惯无处安放了。

A sliding door separates the Chinese and Western kitchens, so there is no need to worry about the Sichuan-Chongqing people’s cooking habit of cooking with heavy oil.


MASTER BEDROOM / 主卧


d19.webp


大面的窗户,阳光能更好的地洒进来,木质地板也有很好的保温效果。席窗而坐,晒太阳也是一种享受。

Wave a window to hit, increase dimensional feeling sunshine is aspersed come in, woodiness woodiness floor has mat window of very good heat preservation effect and sit, bask in sunshine just also is a kind of enjoyment.

d20.webp



d21.webp



全屋不见主灯,设计师只用了光源和辅灯源,床后面的饰面板布置了灯带,结合空间功能的不同,做了最恰当的灯光布置。

whole house does not see advocate lamp, used illuminant to follow auxiliary lamp source only, the act the role of face plate behind the bed decorated lamp belt, what combine dimensional function is different, did the most appropriate lamplight is decorated.


DRESSING ROOM / 衣帽间


d22.webp



d23.webp


衣帽间设计满足了女主“买买买”后的储物需求。书桌柜的设计既可以作为梳妆台,又可以是简易的办公区域。
The cloakroom design meets the storage needs of the heroine after "buy, buy, buy".The design of the desk cabinet can be used as a dressing table as well as a simple office area.

d24.webp


MAIN BATHROOM / 主卫


d25.webp



主卫是二分离设计,黑白色搭配出简约高级感。一天劳累后躺卧在大浴缸里泡个热水澡,冥想静思,舒畅自由。
Advocate defend is two separate design, black and white collocation gives contracted and advanced feeling . After a tiring day, you can lie down in the big bathtub and soak in a hot bath, meditate, and feel free.


BEDROOM / 次卧



d26.webp



d27.webp

次卧简单的配色,给人一种想要安定下来的感觉。以简约的调性满足业主的需求,睡眠空间是让居住者更为舒适的,而不是单纯的摆上物件,让物件抢占空间。
The simple color scheme of the second bedroom gives people the feeling of wanting to settle down. To meet the needs of the owners with a simple tone, the sleeping space is to make the occupants more comfortable, rather than simply placing objects and letting the objects occupy the space.


STUDY / 书房



d28.webp

书房既是书房也可以是卧室,可作为多功能房使用。这种看似简单的榻榻米卧室风格,可以给人带来轻松、休闲的生活氛围。不需要床,直接把厚床垫铺在板上,换上自己喜好的床上用品,就能打造出舒适自然的卧室榻榻米风格,并且增加储物空间。
Is the study and the study can be used as a bedroom can serve as multi-function room.

This seemingly simple tatami bedroom style, can give a person with relaxed leisure life atmosphere don't need a bed, lay thick mattress on the board directly, change your be fond of of bedding, can build a comfortable natural tatami bedroom style, and increase the storage space.





d29.webp





关于岩居岩居设计是一家集策划规划、设计施工、主材设备、软装配饰于一体的全案设计机构。我们提倡“把时间还给生活”,致力于为客户提供更高效、专业、细致化的设计服务,追求客户的满意度与高质量的设计作品。
岩居设计/YANJU DESIGN公众微信:岩居空间设计微信管家:YJXGJ0001公司电话:023-62524481公司地址:重庆渝北  创意公园15栋6单元4A层

d30.webp





THANKS











d31.webp
d32.webp
d33.webp
d34.webp
d35.webp
d36.webp
d37.webp
d38.webp
d39.webp
d40.webp
d41.webp
d42.webp
d43.webp
d44.webp
d45.webp
d46.webp
d47.webp
d48.webp
d49.webp
d50.webp
d51.webp
d52.webp
d53.webp
d54.webp
d55.webp
d56.webp
d57.webp
d58.webp
d59.webp
d60.webp
免责声明:本文由网友发表或转载,不代表自贡论坛观点和立场,不对其真实合法性负责.如有异议或侵权,请与本网站联系删除!
回复

使用道具 举报

您需要登录后才可以回帖 登录 | 立即注册

本版积分规则

全站链接: 工程造价

QQ|手机版|小黑屋|自贡论坛 ( 蜀ICP备12031032号-2 )|网站地图川公网安备 51030002000002号

GMT+8, 2026-4-11 13:11 , Processed in 0.381917 second(s), 12 queries , Redis On.

Powered by Discuz! X3.5

© 2016-2021 Comsenz Inc.

快速回复 返回顶部 返回列表