查看: 348|回复: 0

岩居全案|一个发朋友圈大家都以为是效果图的家是什么样的?

[复制链接]

923

主题

0

回帖

470

积分

中级会员

积分
470
发表于 2025-12-9 10:05:54 | 显示全部楼层 |阅读模式
d1.webp



世界上只有一种英雄主义,那就是了解生命而且热爱生命的人。There is only one kind of heroism in the world, that is, people who understand and love life.
——罗曼罗兰


设计施工单位 / 岩居全案机构


Designer ang Build / YANJU DESIGN


项目地址 / 世茂·茂悦府


Location /Shimao Maoyuefu


户型面积 / 126㎡


Unit type and area / 126㎡


风格趋势 / 轻奢混搭


Scenery trend / Light luxury mix and match


格局分布 / 三室两厅


Pattern distribution / Three rooms and two living rooms



案例背景及简介:

本案的女主人是一个热爱生活、热情洋溢的人,在短短几个月的装修中,设计师深深感受到了业主待人接物的热情。
上周设计师突然收到业主的微信消息,原来是业主把新家的照片发到了朋友圈,收到了众多朋友的点赞,甚至几年都没有对话的朋友也来评论,以为毕业照是效果图;业主暗暗自喜并向设计师进行了反馈:这套房子的效果完全达到甚至超过了她的预期值。
严格意义上来说,这套房子是一个半全案的案例,有些主材是业主自行购买对接的,但也正是这样,业主在装修过程中感受到自己对接起来实在太累太繁琐了。基于前期的一个信任,在后面父母的房子装修时,业主就完全选择了全案模式;用业主的话说,后面父母这套房子的装修就实在是省心太多了!预计12月下旬就可以完工。


客户需求:

1. 最大限度的储物空间。

2. 衣帽间必不可少。

3. 动线设计合理。

4. 采光要充裕。


整体费用:47W

(主材:日立空调、布鲁格林新风、德国威能地暖、TATA木门、德合家木地板、杰西佳瓷砖、美国宣伟乳胶漆、恒洁洁具、悠客定制)


主材明细表:
d2.webp


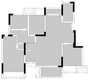
原始结构图与平面布置图:

d3.webp


△ 原始结构图


d4.webp


△ 平面布置图



LIVING ROOM / 客厅

d5.webp


d6.webp


d7.webp


沙发墙以乳胶漆打底,结合金色包边的装饰画和铜色的壁灯,将轻奢优雅的调性发挥到了极致。阳台是打通的,结合大面积的落地窗,让空间显得更为敞亮。The sofa wall is made of latex paint, combined with the decorative paintings with golden edging and copper-colored wall lamps, to maximize the luxurious and elegant tone. The balcony is open, combined with large floor-to-ceiling windows, making the space more open and bright.


d8.webp




d9.webp



电视墙同样以简洁的石膏线为主,结合深色的电视柜,更为和谐。绿植的点缀也是一大亮点,为这个家带来了无限的生机与活力。The TV wall is also dominated by simple plaster lines, combined with a dark TV cabinet, which is more harmonious. The ornamentation of green plants is also a highlight, bringing infinite vitality and vitality to this home.
d10.webp



d11.webp



DINING ROOM / 餐厅



d12.webp





d13.webp


餐厅与生活阳台相连,采光十分通透。餐柜的设计,不仅解决了最基本的收纳问题,而且还提前预留了一个冰箱位,加上利用矮柜布置的操作台,实现了强大的使用功能。

The dining room is connected to the living balcony, and the lighting is very transparent. The design of the dining cabinet not only solves the most basic storage problem, but also reserves a refrigerator space in advance, and the operation table arranged with a low cabinet realizes a powerful use function.

d14.webp


d15.webp


餐桌椅简约而不简单,深色的结构有着美式独有的沉稳气质。线条感十足的美式柜子,再辅以装饰画和桌面的绿植插花,就餐氛围瞬时优雅起来。

The dining table and chairs are simple but not simple, and the dark structure has a calm temperament unique to the American style. The line-like American cabinets, supplemented by decorative paintings and green plants on the tabletop, make the dining atmosphere instantly elegant.


KITCHEN / 厨房



d16.webp



MASTER BEDROOM / 主卧

d17.webp


d18.webp


蓝色的背景墙加上简约的装饰画,清新而大气。深色的简约大床呼应睡眠空间的整体风格,更显稳重大方。

The blue background wall and simple decorative paintings are fresh and atmospheric. The dark simple big bed echoes the overall style of the sleeping space, and is more stable and generous.



d19.webp


d20.webp



DRESSING ROOM / 衣帽间


主卧连接着衣帽间,动线设计方便,白色衣柜款式美观大方且储物空间惊人。女主人说自己特别不喜欢生活用品裸露在外,所以收纳需求较大。

The master bedroom is connected to the cloakroom, the movement is convenient, the white wardrobe is beautiful in style and the storage space is amazing.The hostess said that she especially dislikes the exposure of daily necessities, so she needs more storage.

d21.webp



BEDROOM / 次卧

d22.webp




d23.webp


次卧空间风格与主卧相呼应,整个空间设置了大面积的柜子,充分满足屋主的收纳需求。

The space style of the second bedroom echoes that of the master bedroom. The entire space is equipped with a large area of cabinets to fully meet the storage needs of the owner.
CHILDREN’S ROOM / 儿童房

d24.webp d25.webp


儿童房的床靠墙布设,不仅充分利用房屋的特点,而且更加安全。随着孩子年龄的增加,储物需要也会越来越多,所以儿童房也设置了一整面的柜子。

The bed is placed against the wall, which not only makes full use of the characteristics of the house, but also makes it safer. With the increase of children’s age, the need for storage will increase, so children’s rooms is also equipped with a full-face cabinet.
BATHROOM / 卫浴空间
d26.webp

卫浴空间墙面铺满鱼骨形状瓷砖,结合圆镜和蓝色的抽屉柜,优雅之感应运而生。
The walls of the bathroom space are covered with fishbone-shaped tiles, combined with round mirrors and blue chests of drawers, and the sense of elegance is born.


鸣谢


本案各材料供应商



d27.webp






d28.webp



d29.webp



关于岩居岩居设计是一家集策划规划、设计施工、主材设备、软装配饰于一体的全案设计机构。我们提倡“把时间还给生活”,致力于为客户提供更高效、专业、细致化的设计服务,追求客户的满意度与高质量的设计作品。
岩居设计/YANJU DESIGN

公众微信:岩居空间设计

微信管家:YJXGJ0001

公司电话:023-62524481

公司地址:重庆渝北  创意公园15栋6单元4A层


d30.webp





THANKS






















d31.webp
d32.webp
d33.webp
d34.webp
d35.webp
d36.webp
d37.webp
d38.webp
d39.webp
d40.webp
d41.webp
d42.webp
d43.webp
d44.webp
d45.webp
d46.webp
d47.webp
d48.webp
d49.webp
d50.webp
d51.webp
d52.webp
d53.webp
d54.webp
d55.webp
d56.webp
d57.webp
d58.webp
d59.webp
d60.webp
d61.webp
d62.webp
免责声明:本文由网友发表或转载,不代表自贡论坛观点和立场,不对其真实合法性负责.如有异议或侵权,请与本网站联系删除!
回复

使用道具 举报

您需要登录后才可以回帖 登录 | 立即注册

本版积分规则

全站链接: 工程造价

QQ|手机版|小黑屋|自贡论坛 ( 蜀ICP备12031032号-2 )|网站地图川公网安备 51030002000002号

GMT+8, 2026-3-28 02:07 , Processed in 0.397112 second(s), 9 queries , Redis On.

Powered by Discuz! X3.5

© 2016-2021 Comsenz Inc.

快速回复 返回顶部 返回列表