查看: 452|回复: 0

岩居全案|鲁能领秀城叠下260㎡ · 城市中的秘境花园

[复制链接]

881

主题

0

回帖

471

积分

中级会员

积分
471
发表于 2025-12-9 10:07:40 | 显示全部楼层 |阅读模式
d1.webp



怎样的事物才能真正地永存?阿房宫和华清池都已片瓦不留,李杜的名句和老庄的格言却一字不误地镌刻在每个华人的心里。世上延绵最久的还是非物质的——思想与精神。昨天的哲人只能解释昨天,今天的答案还得来自今人。 

——《夕照透入书房》

设计施工单位 / 岩居全案机构

Designer and Build / YANJU DESIGN

项目地址 / 鲁能领秀城

Location / Luneng Lingxiucheng

户型面积 / 260㎡

Unit type and area / 260㎡

风格趋势 / 现代

Scenery trend / Modern

格局分布 / 五室三厅

Pattern distribution / Five rooms and three living rooms



案例背景 本期案例的客户和很多客户一样,也是设计师的老朋友了。客户的第一套房子是当时新婚的房子,现在有了宝宝,父母有时候也会过来照料,之前的小三居会比较紧凑,所以后来选择了茶园的叠下。女主人在孕期,装修的事情不宜操劳;男主人从事金融工作,平时也十分繁忙,装修的事情更是无暇顾及。他们都对前一套房子的设计师留有不错的印象,所以这套房子也主动找到了我们。了解到设计师现在在做全案,一开始也是半信半疑,后来对整装、基装等公司进行了了解比对,岩居合作的主材商线下实体店也看了不少。基于前期的信任和对岩居全案模式的深入了解,他们需要一个能全程帮他们管控的装修团队,不管是成本预算的控制还是施工工艺的监督,以及主材质量和售后服务等,都与自己的需求十分契合,所以最终选择了我们。

业主需求
1. 尽可能多的采光,喜欢阳光的感觉
2. 有西厨的需求,方便女主人烹饪糕点、后期给宝宝做辅食等。
3. 男主人有在家办公的习惯,闲暇时也会打游戏,书房要工作休闲两不误。

整体费用:113W
主材供应-岩居主材供应体系美的中央空调、曼瑞德新风、悠客定制、朗斯淋浴房、美国宣伟乳胶漆、冠军瓷砖、菲尼斯门窗
d2.webp


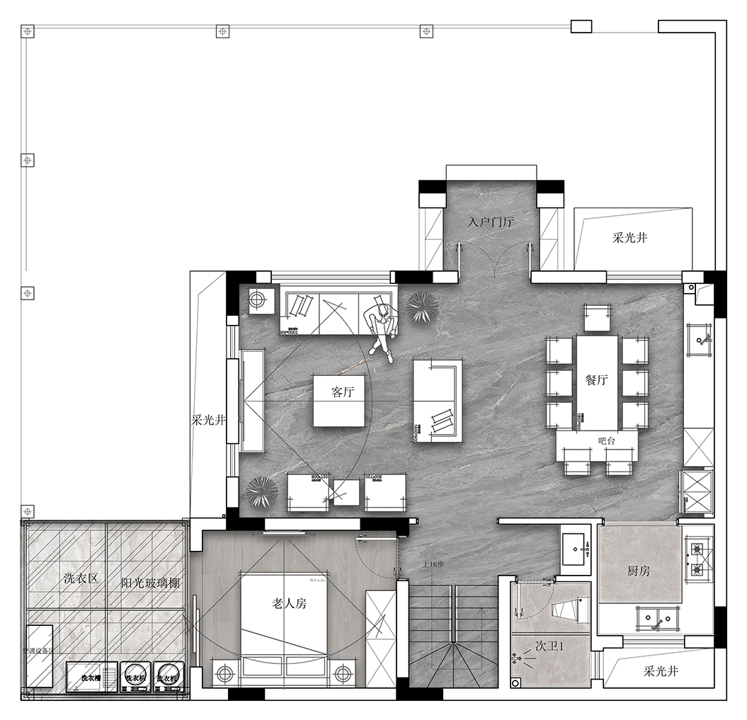
户型图
d3.webp


△ 负二楼户型改造


房子现浇后有四层。原始结构的负二楼没有采光,空气也不好;所以设计师采用了新风系统。负二楼比较安静,用做影音室,周末在家看电影也是不错的选择;另外还做了储物间放置不常用的物品,保持空间干净统一。

d4.webp

△ 负一楼户型改造


负一楼是架空层,防水工程是重点;开发商只留了一个采光天井,导致采光不足,后期设计上加了两个天井保证充足的采光。男主人的书房兼游戏室在负一楼,这是一个安静舒适的办公区域;公共区域则是小朋友的玩耍区域及夫妻二人的健身区域。保姆房也在负一楼,离一楼父母房比较近,方便照顾,单独一层也保证了隐私。
d5.webp


△ 一楼户型改造


d6.webp

△ 二楼户型改造


父母房在一楼,方便起居;二楼则是主卧及儿童房。 岩居服务 给客户最妥帖的服务是岩居全案一贯的宗旨,每一道工序都会严格把控。执行设计师将施工全貌通过图文的形式展现出来,业主能更直观地体验到从毛坯房到精装房的装修过程,达到拎包入住的目的。
d7.webp


意外&转机
疫情原因耽误了近三个月的施工进度,在填补工期的压力下,岩居始终把质量摆在第一位。后来又恰好碰上了中、高考,工期又被强行延迟,无形的压力袭上了每位工作人员的心头。

d8.webp

幸好遇上邻居出门旅游,在做了防护措施的前提下,尽量减少施工噪音,大家趁着这机会加班加点赶工。
交房仪式

d9.webp


售后质保

d10.webp

尽管在装修过程中发生了一些意料之外的事,但岩居始终坚持做好每件事,服务好每位客户。已经体验过全案的业主,感受过全案服务的业主是非常乐意把全案的快乐分享给身边有需要的朋友的;我们也坚信,良好的模式才有一个良性的发展。





LIVING ROOM / 客厅


d11.webp


d12.webp


“棕+绿”的自然系配色,既彰显典雅,又凸显质感,棕色的沙发除了高颜值以外,搭配也不易过时。墨绿色的加入,就像是在棕褐色的大地上,蓦然出现一株株苍劲的松柏,让人眼前一亮,豁然开朗。


d13.webp


d14.webp


白色单人沙发放置在角落,一抹绿意俏皮地藏匿在身后。此时,掸去所有的纷扰嘈杂,去感受舒缓,去释放压力,如同徜徉在城市中的秘境花园。
DINING ROOM & WESTERN KITCHEN / 餐厅&西厨

d15.webp


d16.webp


d17.webp

“岛台+餐桌”的设计,时尚又大方,橙色桌椅搭配灰色餐桌,总是会让人忍不住多看两眼,弧形的吊灯,提升了空间的质感,简约不简单。


MASTER BEDROOM / 主卧

d18.webp



d19.webp



d20.webp


卧室墙面涂抹了莫兰迪灰乳胶漆,黑色极简床头柜搭配灯饰提升了整体质感,舒适自然、清新素雅。


BEDROOM / 次卧

d21.webp


做旧的床头,搭配橙色的床品,次卧显得温馨又别致。


CHILDREN’S ROOM / 儿童房
d22.webp

女儿房是一个充满童趣的空间,满屋充盈着“可可爱爱”,精心打造的空间透露着父母对女儿的爱意。


PARENTS ROOM / 父母房

d23.webp


d24.webp

父母房运用了白色的柜体,灰色的墙面,视觉上干净、明亮,整个房间色调平和、沉着。


DRESSING ROOM / 衣帽间
d25.webp


光线穿过百叶窗,产生了不一样的美感,大大的衣帽间既保证了主卧的整洁,也提升了生活的品质。


THE SECOND FLOOR UNDERGROUND / 地下负二层
d26.webp

三两颗小红果肆意散落在茶几上,花开在近旁。小小的一方天地,是一个人独处,也可以是一群人的狂欢。

d27.webp

卸去一身的疲惫,深深地陷入松软的懒人沙发里,捧一本杂志,听几首歌,慢悠悠地释放倦意。


BATHROOM / 卫浴空间

d28.webp


洗浴室干湿分区,浴室镜白色无暇,柜体简洁不失亮丽,清爽明亮是卫浴空间的关键词。



d29.webp

d30.webp


关于岩居岩居设计是一家集策划规划、设计施工、主材设备、软装配饰于一体的全案设计机构。我们提倡“把时间还给生活”,致力于为客户提供更高效、专业、细致化的设计服务,追求客户的满意度与高质量的设计作品。
岩居设计/YANJU DESIGN

公众微信:岩居空间设计

微信管家:YJXGJ0001

公司电话:023-62524481

公司地址:重庆渝北  创意公园15栋6单元4A层

d31.webp










d32.gif
d33.webp
d34.webp
d35.gif
d36.webp
d37.webp
d38.gif
d39.webp
d40.webp
d41.gif
d42.webp
d43.gif
d44.webp
d45.webp
d46.webp
d47.webp
d48.webp
d49.webp
d50.webp
d51.webp
d52.webp
免责声明:本文由网友发表或转载,不代表自贡论坛观点和立场,不对其真实合法性负责.如有异议或侵权,请与本网站联系删除!
回复

使用道具 举报

您需要登录后才可以回帖 登录 | 立即注册

本版积分规则

全站链接: 工程造价

QQ|手机版|小黑屋|自贡论坛 ( 蜀ICP备12031032号-2 )|网站地图川公网安备 51030002000002号

GMT+8, 2026-3-28 02:07 , Processed in 0.309102 second(s), 9 queries , Redis On.

Powered by Discuz! X3.5

© 2016-2021 Comsenz Inc.

快速回复 返回顶部 返回列表