查看: 115|回复: 0

[盐都快讯] 好消息!S305部分路段将拓宽到8-12车道,预计明年动工

[复制链接]

875

主题

0

回帖

460

积分

中级会员

积分
460
发表于 2025-12-7 22:10:01 | 显示全部楼层 |阅读模式
省道S305,是连接自贡-荣县-富顺

的一条交通运输干线,

其设施和通行状况广受关注。

近日小编获悉,

以上路段将大规模拓宽改造

打造“富荣产城融合带”

项目基本情况
原S305省道(现G348国道)荣县-自贡-富顺段,拓宽改造属于富荣产城融合带基础设施建设项目,起于荣县主城区的蓝帝大道南侧,经贡井区、自流井区、高新区沿滩区,止于富顺县北环路釜溪大桥西侧,道路全长66.7公里,分为A、B、C、D、E、F等六段。

d1.webp
资料图



明年3月动工
本项目优先实施C、D段,预计明年3月动工。
C、D段道路全长24.653公里,起于成佳航空园区,止于东环线交叉口。主要建设内容包括道路、桥涵、绿化、综合管廊、生态修复、道路附属设施及配套服务设施等。

d2.webp



根据自贡市规划管理局公示的方案,C、D段改造道路全长24.62公里、道路控制宽度70米 。其中:

C段道路全长8.7公里、宽32米 ,起点:成佳航空园区,止点:贡井长土镇。

D段道路全长15.9公里、宽57米,起点:贡井长土镇,止点:东环线交叉口。

本项目方案已经市委市政府审定同意,项目立项、初步设计等前期建设手续已办理完成。由于本项目采用政府与社会资本合作(PPP)模式建设,PPP项目采购阶段资料已报省财政厅审核,待审核通过后,进行招标并开工建设。预计本项目于2019年3月前开工建设。


C、D段改造方案
双向8车道的A-A

d3.webp

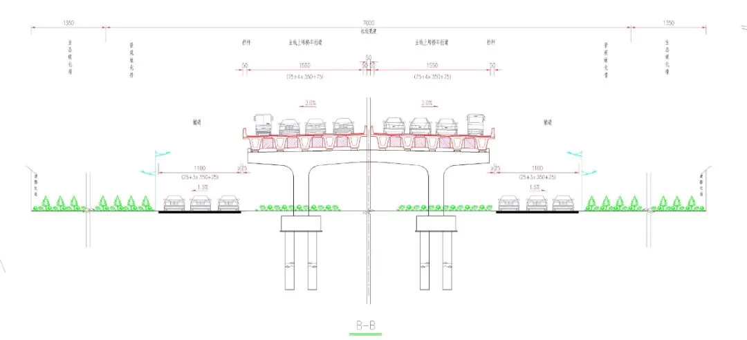
双向14车道包含高架的B-B

d4.webp

一种是双向12车道的C-C

d5.webp



d6.webp

富荣产城融合带基础设施建设项目(C、D段)公示图1

d7.webp

富荣产城融合带基础设施建设项目(C、D段)公示图2



d8.webp

随着富荣产城融合带基础设施建设项的实施,

除了今后交通更便捷外,

也将促进自贡的经济发展。

你期待吗?
免责声明:本文由网友发表或转载,不代表自贡论坛观点和立场,不对其真实合法性负责.如有异议或侵权,请与本网站联系删除!
回复

使用道具 举报

您需要登录后才可以回帖 登录 | 立即注册

本版积分规则

全站链接: 工程造价

QQ|手机版|小黑屋|自贡论坛 ( 蜀ICP备12031032号-2 )|网站地图川公网安备 51030002000002号

GMT+8, 2026-4-11 09:01 , Processed in 0.103217 second(s), 11 queries , Redis On.

Powered by Discuz! X3.5

© 2016-2021 Comsenz Inc.

快速回复 返回顶部 返回列表