查看: 102|回复: 0

[自贡城事] 占地159479.59㎡!自贡这里将新建一所医院!设计方案出炉!

[复制链接]

948

主题

0

回帖

785

积分

高级会员

积分
785
发表于 2025-12-7 23:12:56 | 显示全部楼层 |阅读模式
医疗配套设备的建设

一直以来都非常受人们的关注

近日,自贡传来一好消息

自贡第一人民医院将建立新院区

d1.gif

d2.jpg

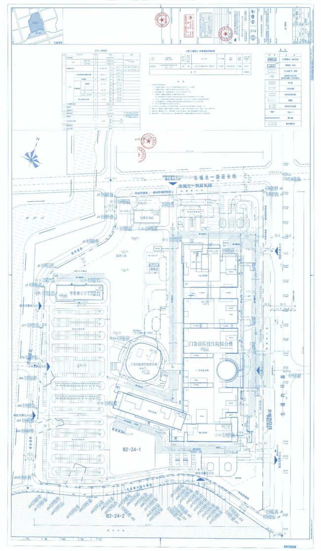
据自贡市住房和城乡建设局官网消息:自贡市第一人民医院关于自贡市内自同城区域医疗中心、自贡市公共卫生临床中心建设项目、川南心脑血管疾病紧急救援中心建设项目、川南灾害医学紧急救治中心项目方案设计方案出炉,并获得自贡市住房和城乡建设局的官方批复。

我们一起来看看

具体的建设方案

看看一医院新院区

将打造成什么模样

d3.jpg

项目地址:东部新城B2-24-1、B2-24-2地块

用地总面积:159479.59㎡

建筑总面积:111583.35㎡

绿化总面积:47896.24㎡

建筑控制高度:81.5m

停车位:1915个

总床位:1500个

d4.jpg

d5.jpg

信息来源:自贡市住房和城乡建设局

自贡第一人民医院新院区

将建设在自贡东部新城

相信新院区建立后

其他医院的停车、床位等问题

将会得到一定程度的缓解

同时自贡的医疗卫生

也将会更加完善

让我们一起期待吧
免责声明:本文由网友发表或转载,不代表自贡论坛观点和立场,不对其真实合法性负责.如有异议或侵权,请与本网站联系删除!
回复

使用道具 举报

您需要登录后才可以回帖 登录 | 立即注册

本版积分规则

全站链接: 工程造价

QQ|手机版|小黑屋|自贡论坛 ( 蜀ICP备12031032号-2 )|网站地图川公网安备 51030002000002号

GMT+8, 2026-3-16 06:18 , Processed in 0.081822 second(s), 10 queries , Redis On.

Powered by Discuz! X3.5

© 2016-2021 Comsenz Inc.

快速回复 返回顶部 返回列表