查看: 546|回复: 0

岩居全案|公园置尚100㎡ · 一个人的柴米油盐

[复制链接]

891

主题

0

回帖

498

积分

中级会员

积分
498
发表于 2025-12-9 10:07:41 | 显示全部楼层 |阅读模式
d1.webp



生活点滴的温柔可爱,都是值得的证据。感受风感受雨,只要愿意,柴米油盐都变得生动有趣,机智可人。打造一片略带俏皮的小天地,给自己自由主张的自在过活。


设计施工单位 / 岩居全案机

Designer and Build / YANJU DESIGN

项目地址 / 公园置尚

Location / Gongyuanzhishang

户型面积 / 100㎡

Unit type and area / 100㎡

风格趋势 / 现代

Scenery trend / Modern

格局分布 / 两室两厅

Pattern distribution / Two rooms and two living rooms

案例背景


业主是一名自由职业者,目前是一人独居,通过短视频平台找到了我们。她说第一次来办公室咨询沟通就被公司的办公环境种草了,接触后发现自己的想法也和公司的服务理念十分契合——不想把时间“浪费“在装修这件事儿上,所以她需要一支专业、靠谱的团队来为她打理装修事务。

业主需求

1. 常住人口是业主一人,父母偶尔会来,希望朋友玩得开心了也能有小住一下的地方,所以需要保留至少两个卧室。

2. 希望家是可以放松身心的地方。

3. 作为乐高资深玩家,需要有展存手办的区域。

4. 喜欢自制咖啡、点心,对厨房功能性要求较高。

5. 最后也是最重要的一点,女生谁不想拥有一个专属衣橱呢?所以衣帽间是少不了的。

整体费用:


45W主材供应-岩居主材供应体系:日立空调、菲尼斯门窗、克络依全屋定制、山竹饰面板、美国宣伟乳胶漆、朗斯淋浴房、方太电器、安华洁具


d2.webp


户型图


d3.webp


△ 一楼户型改造

d4.webp


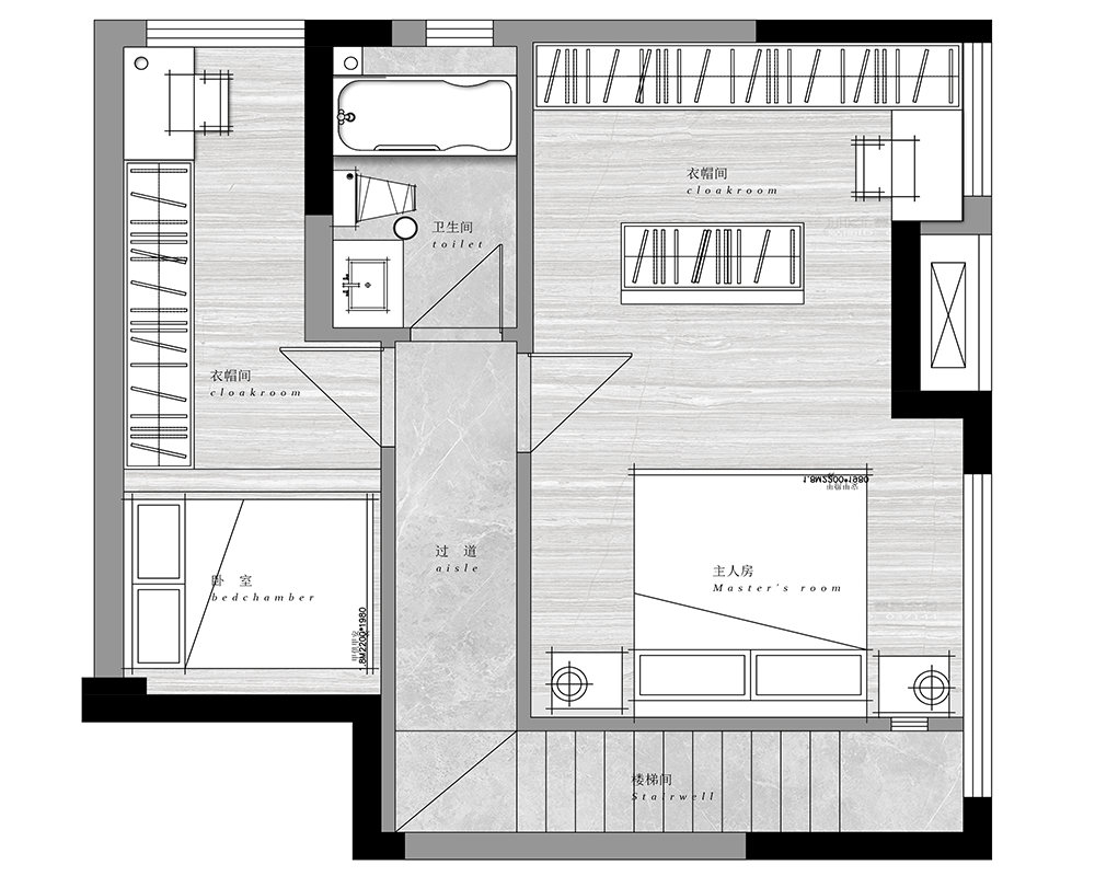
△ 二楼户型改造

原始户型是一个三室两厅的格局。一层厨房非常小,业主喜欢烹饪,在厨房的时间会比较长,满足不了业主需求;餐厅以及楼梯的位置都很局促。根据业主使用需求,设计师取消了一层的一间卧室,改为开放式厨房,扩大生活阳台尺寸,增加了公共区域储物,二楼保留两个卧室,一个卫生间。



空间解读


此套案例设计以黑、白、灰为主,自然简约的配色,辅以稍暖色调的软装点缀,增强空间生命力。空间以矩形为主题的设计思路,从整体布局到立体观感上去芜存菁,看似平淡无奇的细节却都隐藏了精致思考。全屋大量的木饰面,让空间整体质感提升了不少。



LIVING ROOM / 客厅


d5.webp



d6.webp



d7.webp



摒弃繁琐的背景设计,设计师采用留白来增加空间的体感。全厅无主灯设计,射灯与筒灯的加入让整个空间看起来落落大方。


d8.webp


d9.webp


全屋横梁较多,设计师采用网格式吊顶,弱化了横梁,使之融为一体。沙发后的橱窗,承载着屋主童年时的回忆和成年后的热爱,各种漫画册、乐高、自制手办等,一件不漏塞满展示柜。


d10.webp



d11.webp


KITCHEN / 厨房

原始户型厨房餐区空间很局促,满足不了日常的烹饪及收纳需求。厨房做了开放式,冰箱采用嵌入式与餐边柜结合,没有占用厨房的有效区域,合理利用空间让空间更通透。

d12.webp


开放式厨房衔接着大理石吧台,一眼便能望尽整个客厅,做好饭菜稍转身就可以放在吧台上。炊烟袅袅升起,开着电视,就算一个人,也能感受到世间的温柔与平凡。


DINING ROOM / 餐厅
d13.webp


d14.webp

业主喜欢一边用餐一边看电视,客餐厅的布局刚好契合业主的需求。与其说它是餐厅,不如说它是心灵的依托,暖着心,护着胃。


BEDROOM / 卧室
d15.webp


d16.webp


d17.webp

垂顺的吊灯将侧影打在墙上,磅礴大气的黑金背景墙,无疑让整个房间更霸气。黑色的床平息了锐气,安宁又沉稳。


DRESSING ROOM / 衣帽间
d18.webp


卧室利用电视背景墙做了隔断,将睡眠空间与衣帽间分离开,美观的同时又保证了功能划分。



BATHROOM / 卫浴空间

d19.webp


△ 公卫


一楼公卫做了隐形门,客餐厅风格统一的同时减少过道面积。干湿分离让地面更干净,全屋通铺灰色瓷砖,简洁利落。颜值不俗的浴室柜,为整个空间增添了不少美感。
d20.webp

△ 主卫


二楼的主卫放置了浴缸,缓解疲惫最有效的方式之一莫过于泡个热水澡,让暖流袭满全身,酣畅淋漓。


d21.webp



d22.webp




关于岩居岩居设计是一家集策划规划、设计施工、主材设备、软装配饰于一体的全案设计机构。我们提倡“把时间还给生活”,致力于为客户提供更高效、专业、细致化的设计服务,追求客户的满意度与高质量的设计作品。
岩居设计/YANJU DESIGN

公众微信:岩居空间设计

微信管家:YJXGJ0001

公司电话:023-62524481

公司地址:重庆渝北  创意公园15栋6单元4A层


















d23.webp
d24.webp
d25.gif
d26.gif
d27.gif
d28.webp
d29.webp
d30.webp
d31.webp
d32.gif
d33.gif
d34.webp
d35.webp
d36.webp
d37.webp
d38.gif
d39.webp
d40.webp
d41.webp
d42.webp
d43.webp
d44.webp
d45.webp
d46.webp
免责声明:本文由网友发表或转载,不代表自贡论坛观点和立场,不对其真实合法性负责.如有异议或侵权,请与本网站联系删除!
回复

使用道具 举报

您需要登录后才可以回帖 登录 | 立即注册

本版积分规则

全站链接: 工程造价

QQ|手机版|小黑屋|自贡论坛 ( 蜀ICP备12031032号-2 )|网站地图川公网安备 51030002000002号

GMT+8, 2026-4-11 14:32 , Processed in 0.304361 second(s), 12 queries , Redis On.

Powered by Discuz! X3.5

© 2016-2021 Comsenz Inc.

快速回复 返回顶部 返回列表