查看: 532|回复: 0

岩居全案|雍江艺庭 · 「甩手掌柜」的精致生活

[复制链接]

914

主题

0

回帖

493

积分

中级会员

积分
493
发表于 2025-12-9 10:07:36 | 显示全部楼层 |阅读模式
d1.webp



个家的风格往往和主人的性格、职业、家庭息息相关。随着人们对个性化的追求,越来越多的人期望能够展现自己家更为独特的一面。“黑暗系”装修风格的出现,无疑满足了这一需求。不同于现有的流行风格,暗黑系家装往往需要花费更多的心思来打造……
设计施工单位 / 岩居全案机构


Designer and Build / YANJU DESIGN


项目地址 / 雍江艺庭


Location / Yongjiangyiting


户型面积 / 115㎡


Unit type and area / 115㎡


风格趋势 / 暗黑系现代极简


Scenery trend / Diablo Modern Minimalist


格局分布 / 两室两厅


Pattern distribution / Two rooms and two living rooms




案例背景

业主是一名海归,从事汽车行业。和很多找到我们的业主一样,业主的朋友是我们的全案老客户,在经历了一次愉快的装修体验后,出于对我们的信任,他果断向业主推荐了我们。
初次见面业主给人的印象是绅士、精致,通过几个月的装修接触下来,发现业主不单单是肉眼所见的精致,更多的是对生活的一种热爱、自律……

d2.webp

△ 业主自制糕点、鸡尾酒


业主需求


1. 中西厨皆要有,业主喜欢做糕点,西厨操作便捷;


2. 喜欢深色有质感的东西;


3. 需要衣帽间


整体费用:53W

主材供应-岩居主材供应体系:格力风管机、PS定制、艾默生垃圾处理器、嘉尼亚瓷砖、山竹木饰面、汉斯格雅洁具、邓恩漆、尚鼎木门、卡斯摩地板


d3.webp


服务节点

d4.webp


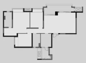
户型图


d5.webp


△ 原始结构图




d6.webp

平面布置图


    厨房原始户型为一字型厨房,为了让动线更合理,设计师考虑用了滑门,既不占用空间,又能解决油烟问题。业主喜欢调酒、做甜点等,设计师为业主考虑了一个西厨区域,增加了与客餐厅的互动性。

    卫生间区域,设计师也为业主考虑做了干湿分区业主衣物较多,需要一个单独的衣帽间,原始户型本是三个房间,考虑到目前需求,设计师把次卧融入主卧,做了一个大气的套房
    原始户型主卫面积较小,不能满足业主想要浴缸的需求,设计师把主卫扩大,把进主卫的过道利用起来,让主卧床头背景在视线上更完整。


    LIVING ROOM / 客厅
施工图

d7.webp


d8.webp


VS


效果图


d9.webp


VS


景图



d10.webp


暗黑风不等于全黑色,大面积的黑色加上点缀色才是正确的打开方式,其他较暗沉的色彩,都可以用来加深客厅层次


d11.webp


d12.webp


模型架无疑是整个客厅的吸睛之处了,在设计开初,业主就明确表示需要一个放置模型架的区域,经过和设计师的沟通,最终确定在进门旁边的位置。各种金属质感的模型,为整个暗黑系的空间增色不少。这个家,装满了业主的喜好,也彰显着业主的品味和性格
效果图

d13.webp


VS


景图


d14.webp


d15.webp


家可以彰显个性,但也绝不能少了温暖和舒适,软趴趴的懒人沙发,看着就想躺下去,感受「家」独有的轻松和自然
DINING ROOM & WESTERN KITCHEN / 餐厅&西厨
施工图


d16.webp


VS


效果图


d17.webp


VS


景图

d18.webp


d19.webp


工作之余的业主喜欢调酒,所以西厨吧台是必不可少的。

深色墙壁、黑色家具和一些对比色的配件,让色彩得以综合,即使处在一个黑暗系的厨房,也不会因为深色觉得压抑。

d20.webp


d21.webp

黑色中加入木色,平衡了深色带来的冰凉感,让黑暗空间也能呈现温润的质感。


CHINESE KITCHEN / 中厨





d22.webp


II型厨房最大限度地保证储物,也更具操作性

干湿分离明显,两边不会连在一起;高低台设置,高台切菜,低台炒菜,给予下厨更多舒适感。


MASTER BEDROOM / 主卧


效果图



d23.webp
VS
实景图

d24.webp d25.webp

灰色虽然不是色彩,但它是介于纯黑和纯白之间的一种明度,有亮暗的变化。主卧以「灰」为主色调,营造了一个柔和的睡眠空间。


d26.webp

主卧的水泥墙质感高级,远看有淡淡的烟雾感;悬浮台灯、别致吊灯、手办、饰品等处处体现了业主生活的精致



DRESSING ROOM / 衣帽间


d27.webp




业主从事汽车行业,商务活动较多,工作中需要着正装的场合也比较多,衣帽间的设计满足了业主的需求。



BATHROOM / 卫浴空间
d28.webp



d29.webp


卫浴空间实现了干湿分离,悬挂的柜子无死角,方便清洁;整体配色营造出神秘与时尚感并存的氛围。


d30.webp







d31.webp


d32.webp
-END-
关于岩居岩居设计是一家集策划规划、设计施工、主材设备、软装配饰于一体的全案设计机构。我们提倡“把时间还给生活”,致力于为客户提供更高效、专业、细致化的设计服务,追求客户的满意度与高质量的设计作品。


岩居设计/YANJU DESIGN



公众微信:岩居空间设计


微信管家:YJXGJ0001


公司电话:023-62524481


公司地址:重庆渝北  创意公园15栋6单元4A层




d33.webp

THANKS



















d34.webp
d35.webp
d36.webp
d37.webp
d38.webp
d39.webp
d40.webp
d41.webp
d42.webp
d43.webp
d44.webp
d45.webp
d46.webp
d47.webp
d48.webp
d49.webp
d50.webp
d51.webp
d52.webp
d53.webp
d54.webp
d55.webp
d56.webp
d57.webp
d58.webp
d59.webp
d60.webp
免责声明:本文由网友发表或转载,不代表自贡论坛观点和立场,不对其真实合法性负责.如有异议或侵权,请与本网站联系删除!
回复

使用道具 举报

您需要登录后才可以回帖 登录 | 立即注册

本版积分规则

全站链接: 工程造价

QQ|手机版|小黑屋|自贡论坛 ( 蜀ICP备12031032号-2 )|网站地图川公网安备 51030002000002号

GMT+8, 2026-4-11 14:33 , Processed in 0.363612 second(s), 10 queries , Redis On.

Powered by Discuz! X3.5

© 2016-2021 Comsenz Inc.

快速回复 返回顶部 返回列表